aansluiting met een ALU raam in het vlak van het metselwerk met een ALU dorpel (EPB aanvaarde knoop)
bundel detailtekeningen
Een handig overzicht van de gevelsystemen met sierpleister, 60 detailtekeningen en een overzicht van de profielen en montage elementen
U kan dit downloaden
of
Wenst u liever een pracht exemplaar in boekvorm kosteloos te ontvangen? Geen probleem, wij bezorgen het u met veel plezier.
KLIK HIER VOOR UW GRATIS EXEMPLAAR IN BOEKVORM
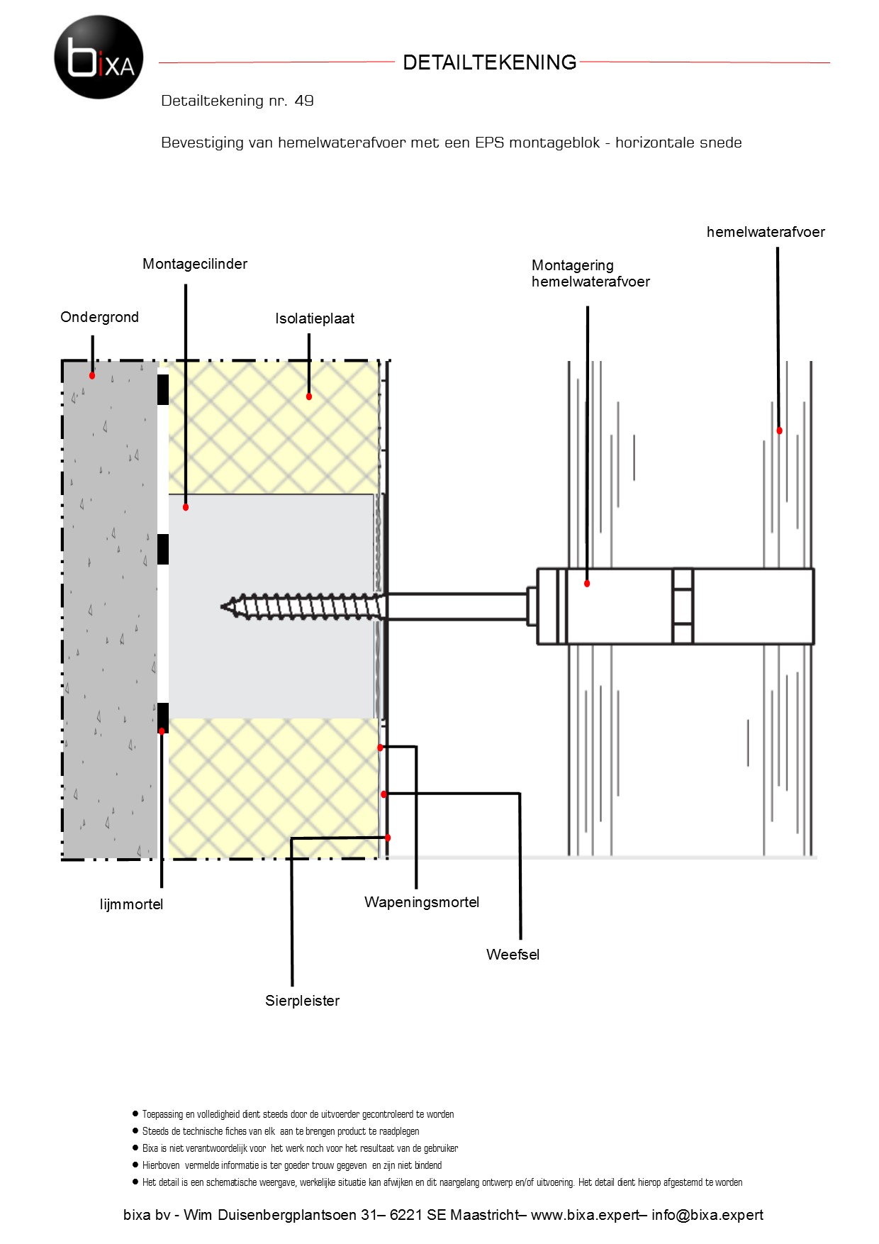
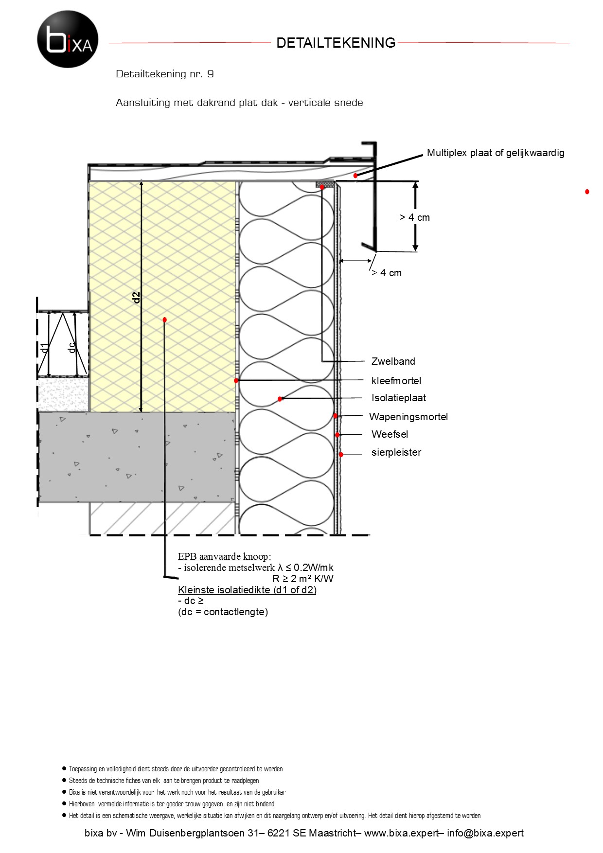
| detail | download |
|---|---|
![]() |





























































